物件番号 種目 更新日 |
所在地 |
交通 |
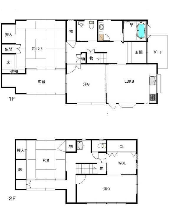
価格 間取 |
土地面積 建物面積 |
建ぺい率 容積率 |
No.1057850 中古一戸建て 2025/12/29 |
宝塚市野上1丁目
|
阪急今津線 逆瀬川駅 歩5分 |
6,380万円 4LDK |
231.73u 153.06u |
50% 100% |
| ※画像をクリックすると拡大表示します※ |
 |
 |
| 土地権利 |
所有権 |
用途地域 |
一種低層 |
| 地目 |
宅地 |
地勢 |
平坦 |
| 国土法届出 |
中 |
接道状況 |
一方 北東4.4m |
| 都市計画 |
市街化区域 |
構造 |
木造 2階建 |
| 私道面積 |
- |
築年月 |
1997/03 (築28年) |
| 駐車場 |
- |
建築条件 |
無 |
| 現況 |
空家 |
引渡時期 |
相談 |
小学校区 |
第一小学校 |
中学校区 |
宝梅中学校 |
| 条件・設備 |
システムキッチン/駐車場/ |
| ここがポイント! |
建て替え用地としてもご検討ください |
| 取引態様 |
仲介 |
※仲介物件は、ご成約時に仲介手数料とその消費税が必要となります。 ※定期的に掲載情報を更新しておりますが、お問い合わせいただいた際に商談中、売却済、条件変更となっている場合があります。 あらかじめご了承ください。 ※掲載情報と現況に相違がある場合は、現況を優先します。 ※交通機関からの所要時間は、当該物件の分譲時のパンフレットに記載された時間、または地図上での道路距離に基づいて計算した時間を記載しています。 |
|
|
※物件の位置を正確に表示できない場合があります。 ※物件詳細の情報量により、地図表示に時間がかかる場合があります。 ※地図表示はGoogle社より提供を受けていますので、地図内容に責任は負いません。 |
|